Australia

# Sold $899,000

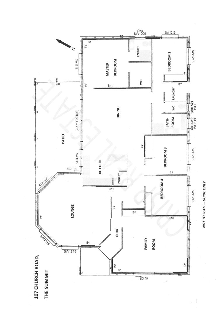
107 Church Road, The Summit, Qld 4377

# Location

Description

IDEAL LIFESTYLE PROPERTY Located at The Summit, only 10 minutes north of Stanthorpe, this 18 year old brick home set on 4.74 hectares or 11.7 aces is private and tranquil and has a lovely rural aspect.

The home is comprised of a generous kitchen with dishwasher, gas cooktop and electric oven, an adjacent large dining area, separate lounge room, rumpus room, a master bedroom with ensuite and walk-in robe, family bathroom with separate toilet and 3 other bedrooms with built-in robes. Surrounded by impressive gardens featuring a pond, fountain, pizza oven and paved pathways, the front verandah will be a wonderful place to entertain or to just enjoy your country home.

There are well-planned vegetable gardens and fruit trees, a double remote garage with high doors, a workshed and storage area, a 2 bay carport and a caravan shelter, a weekender caravan with annexe and shower, a large greenhouse, garden shedding, irrigation system to the vegetable plot, 3 x 5000 gallon rainwater tanks, a septic treatment system, 2 dams and fenced paddocks for stock.

The Summit General Store is a few minutes away, the property has sealed road frontage as well as access to the rear of the property via Matthews Lane, mains power and solar panels into the grid. This property is a gem that promises an extraordinary lifestyle with a harmonious blend of elegance, space and beauty.

Call the exclusive agents at Crisp Real Estate to arrange your inspection.

View More #

Floor Plans

Location

  • Contact the agency

    To request an inspection

  • # Call # Email

Julia Jones

Agent Name

Norman Crisp

Agent Name

# Report Listing

Looking for a property?

  • Top listings
  • Investment
  • Development
  • Personal home
  • Price reports
  • Suburb reports

Do you own a property?

  • Place a free listing
  • Services for private advertisers
  • Guide to selling your home
  • Insurance
  • Improve the photos of your listing
  • Value your property for free

Are you a real estate proffesional?

  • Publish your agencies properties
  • Already a client? Log into your account
  • Advertising on Australian Real Estate
  • Australian Real Estate data technology for property insights
  • Real Estate courses