Australia

# Sold Contact Agent

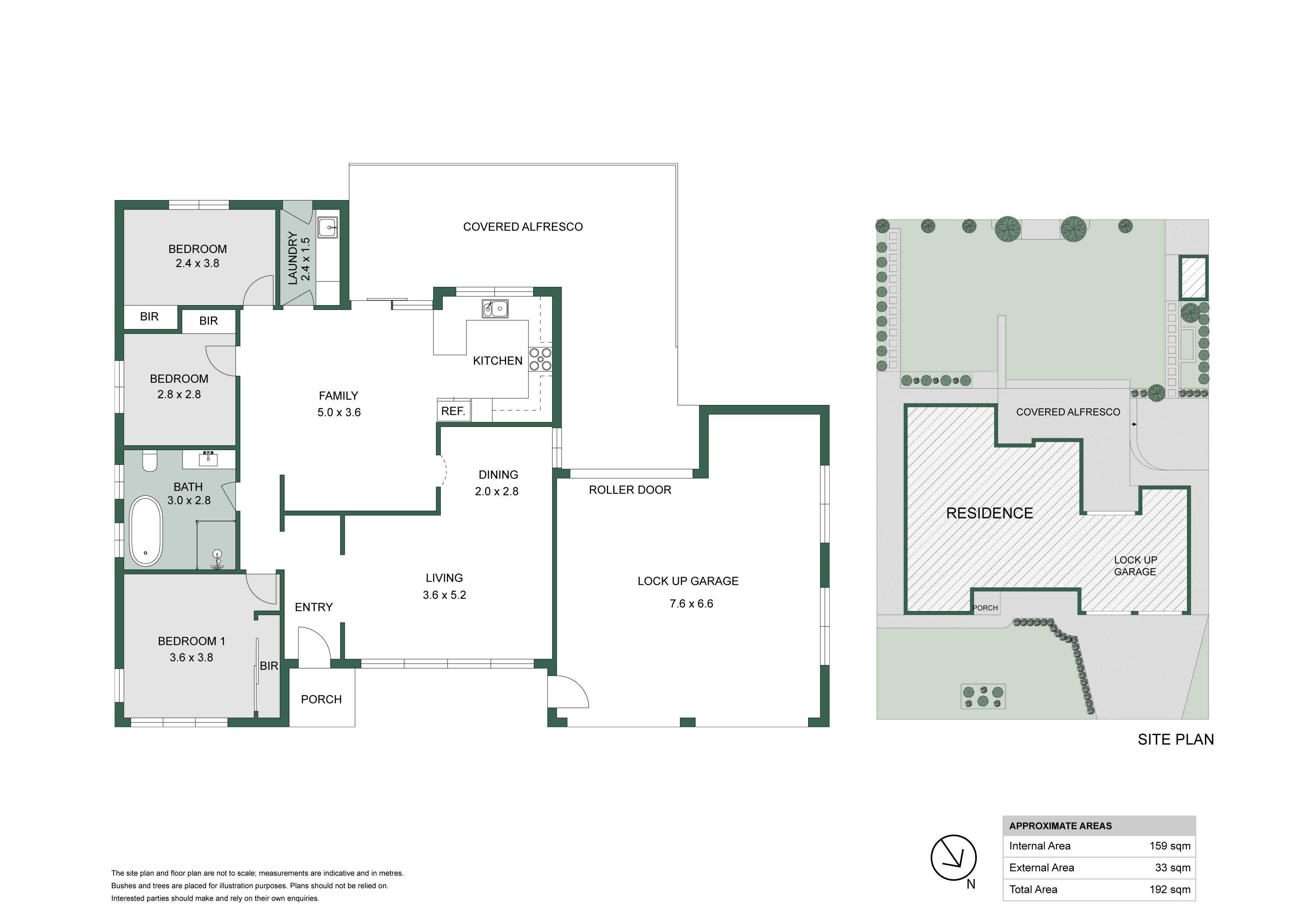
204 Maryland Drive, Maryland, NSW 2287

# Location

Description

Quality First, Second or Downsize Home Offering Exceptional Value Enhanced by its central Maryland address, this home is a testament to comfortable living. A harness of clean lines, soft elements and a timeless aesthetic, the interior of this classic brick home has achieved everything you are looking for in a quality home and more. A big backyard for the kids or gardener, three bedrooms, separate family and living zones, and an enclosed QLD-style alfresco room that will quickly become your go to space for relaxation or entertaining. With many modern features enriching the layout, including a renovated bathroom, a granite-surfaced kitchen and split-system air conditioning, here is a move-in ready home waiting for its next chapter. Residing on a laser-level 672sqm in the heart of a family-oriented community, it's a short walk to Tumpoaba Reserve Playground, within equal distance of Glendore and Maryland Public Schools (1.1km) and only 2.5km from Bishop Tyrell Anglican College.

- A single level home delivering on space and comfort, everyone will love living here

- A collection of living areas creates communal spaces and places to retreat

- A modern appointed kitchen featuring granite benchtops and modern appliances

- Fully screened Paradise room where you can dine and entertain alfresco year-round - All three bedrooms are quietly-set and three include a built-in wardrobe

- Large and renovated bathroom with stand-alone bath and separate shower

- Split system air conditioners, plantation shutters, and great storage options

- Open air alfresco setting delivers a sunny spot for your morning cuppa

- Double garage offering drive through access and a wide driveway for OSP

- Large and level block covered in established lawn and fully fenced for safety

- 1.7km to Fletcher Village for a Coles Supermarket and specialty stores

- Quick drive to the Hunter Expressway and Newcastle Link Road, 14km to Newcastle

View More #

Floor Plans

Location

  • Contact the agency

    To request an inspection

  • # Call # Email

Luke Morrison

Agent Name

Laura Strong

Agent Name

# Report Listing

Looking for a property?

  • Top listings
  • Investment
  • Development
  • Personal home
  • Price reports
  • Suburb reports

Do you own a property?

  • Place a free listing
  • Services for private advertisers
  • Guide to selling your home
  • Insurance
  • Improve the photos of your listing
  • Value your property for free

Are you a real estate proffesional?

  • Publish your agencies properties
  • Already a client? Log into your account
  • Advertising on Australian Real Estate
  • Australian Real Estate data technology for property insights
  • Real Estate courses